UMBAU UND MODERNISIERUNG EINES MEHRFAMILIENWOHNHAUSES
Nach einem Eigentümerwechsel wurde das 1961 errichtete Haus in Heidelberg-Neuenheim komplett umgebaut und neu gestaltet.
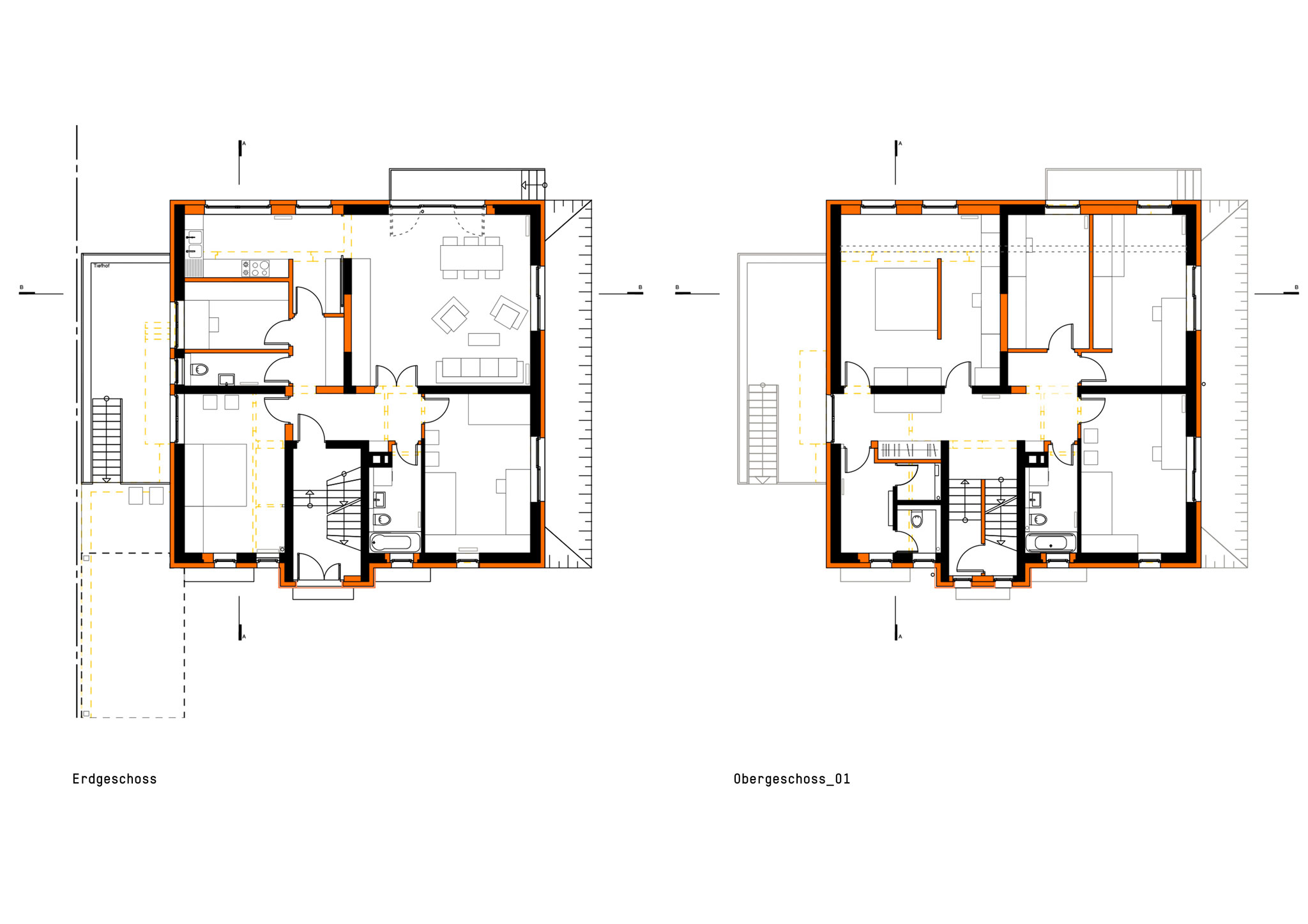
Das Treppenhaus mit seiner durchgehenden Verglasung und das auskragende Flachdach des Staffelgeschosses gaben dem Haus zwar Prägnanz, bildeten aber erhebliche Wärmebrücken. Darüber hinaus mussten die Grundrisse und Flächenangebote des bestehenden Hauses den neuen Wohnbedürfnissen angepasst werden. Neben einer kleinen Wohnung im Souterrain entstand im Erdgeschoss eine Mietwohnung mit Zugang zum Garten. Das erste Obergeschoss und das Dachgeschoss wurden zu einer großen Maisonette-Wohnung für die neuen Eigentümer zusammengelegt. Die Abfolge kleiner Zimmer wurde im Staffelgeschoss zugunsten eines großen, offenen Wohnbereichs aufgelöst, der sich zur Süd-West-Ecke des Hauses orientiert. Eine Dachterrasse komplettiert die Ansprüche an eine Stadtwohnung mit einer großzügigen Freifläche.
Die ehemalige Ölheizung wurde mit dem Anschluss an die Fernwärmeversorgung ersetzt. Das Haus wurde gedämmt und mit dreifach-verglasten Fenstern ausgestattet. Nach der energetischen Ertüchtigung ist ein KFW Effizienzhaus 100 mit einem Jahresprimärenergiebedarf von 58 KWH/m2 entstanden.









